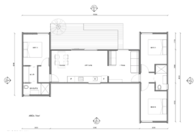
The Waimakariri is a three bedroom home, totalling 73sqm.

Cost: $390,000 (Delivery and site works costs not included)